Manhattan Residence







No items found.
Private Project
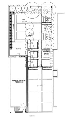
The residence is located in the historic area of upper Manhattan. The townhouse garden is divided into three distinct zones: a parking court, a kitchen garden with raised dining terrace, and a crushed stone paved "living room." The brick and bluestone walls, pavement and curbs knit together the separate areas to create a unified whole. Evergreen boxwoods and japanese yews form the formal backbone of the garden while the kitchen and perennial gardens provide variety and seasonal interest. The perennial garden surrounds the main living space on two sides with a water trough and bamboo screen framing the third.


